一、前期量房阶段:
量房阶段需要做到“快”“精”“����� �������Ƴ����������� �������Ƴ������������ �������Ƴ������������ �������Ƴ�������准”,特别是碰到异形空间更要掌握好技巧。
好的 工 具 可以提升整体工作����� �������Ƴ������������ �������Ƴ������������ �������Ƴ������������ �������Ƴ�������效率与准确性量房工具箱: 激光放线仪����� �������Ƴ������������ �������Ƴ������������ �������Ƴ������������ �������Ƴ������� 卷尺、激光尺 彩色笔(5种颜����� �������Ƴ������������ �������Ƴ������������ �������Ƴ������������ �������Ƴ�������色以上)铅笔 纸 量房夹
照相机(注:带有摄像功能) A����� �������Ƴ������������ �������Ƴ������������ �������Ƴ������������ �������Ƴ������3纸打印

量房注意事项:阳角扩,阴角缩,����� �������Ƴ����������� �������Ƴ������������ �������Ƴ����������� �������Ƴ�������若碰斜墙量对角,勿忘梁,切记排污管道纸上标����� �������Ƴ������������ �������Ƴ������������ �������Ƴ������������ �������Ƴ�������。先定点,后画线,虚实结合引线抛。局����� �������Ƴ������������ �������Ƴ������������ �������Ƴ����������� �������Ƴ�������部引立面,标层高,
切勿纸上乱糟糟。
老师总结出口诀式记忆文字,抓重点不����� �������Ƴ������������ �������Ƴ������������ �������Ƴ������������ �������Ƴ�������易忘记。
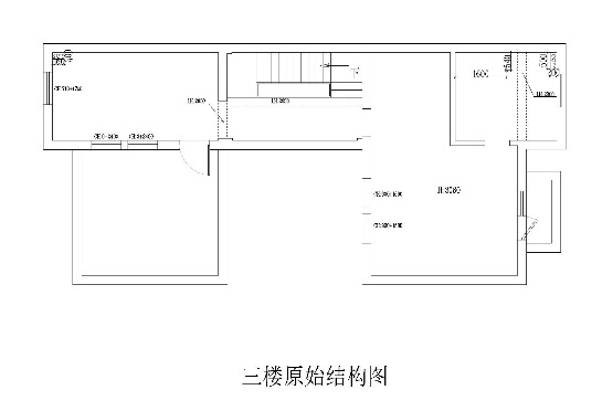
量完房后cad放出原始机构图


二、谈单、平面方案创意构思阶段:
此阶段涉及的重点有:
沟通重点:常住人口、生活方式、生活习惯、����� �������Ƴ������������ �������Ƴ������������ �������Ƴ������������ �������Ƴ�������文化喜好、宗教信仰、是否需要考虑五恒系统及智能����� �������Ƴ������������ �������Ƴ������������ �������Ƴ������������ �������Ƴ�������家居,东西方文化偏好,业余爱好,购物习惯等。
户型弊端:一楼楼梯口朝向有风水问����� �������Ƴ����������� �������Ƴ������������ �������Ƴ������������ �������Ƴ�������题,并造成地下室空间巨大的浪费����� �������Ƴ����������� �������Ƴ������������ �������Ƴ������������ �������Ƴ�������,影响采光,地下室的动线造成了空间不����� �������Ƴ������������ �������Ƴ������������ �������Ƴ������������ �������Ƴ�������必要浪费,二楼梁位有很强的压迫感,需要弱化,����� �������Ƴ������������ �������Ƴ������������ �������Ƴ������������ �������Ƴ�������另外卧室至卫生间的动线不舒适,造成空间浪费。
(备注:设计的重点在于发现问题及解决问题)
三、效果图阶段:

四、施工图阶段:
五、落地施工阶段:
学习不能纸上谈兵,课堂结合课����� �������Ƴ������������ �������Ƴ������������ �������Ƴ������������ �������Ƴ�������外实践项目,学习期间就快人一步开始积累以后����� �������Ƴ������������ �������Ƴ������������ �������Ƴ������������ �������Ƴ������用人单位要求的设计工作经验。
六、项目验收:
























