宋都橄榄墅排屋项目实践
一、前期量房阶段:
量房阶段需要做到“快”“精”����� �������Ƴ������������ �������Ƴ������������ �������Ƴ������������ �������Ƴ�������“准”,特别是碰到异形空间更要掌握好技����� �������Ƴ������������ �������Ƴ������������ �������Ƴ������������ �������Ƴ�������巧。
好的 工 具 可以提升整体工作效率与����� �������Ƴ������������ �������Ƴ������������ �������Ƴ������������ �������Ƴ�������准确性量房工具箱: 激光放线仪 卷����� �������Ƴ������������ �������Ƴ����������� �������Ƴ����������� �������Ƴ�������尺、激光尺 彩色笔(5种����� �������Ƴ������������ �������Ƴ������������ �������Ƴ������������ �������Ƴ�������颜色以上)铅笔 纸 量房����� �������Ƴ������������ �������Ƴ������������ �������Ƴ������������ �������Ƴ�������夹
照相机(注:带有摄像功能����� �������Ƴ����������� �������Ƴ������������ �������Ƴ������������ �������Ƴ�������) A3纸打印
量房注意事项:阳角扩,阴角缩,若碰斜����� �������Ƴ����������� �������Ƴ������������ �������Ƴ������������ �������Ƴ�������墙量对角,勿忘梁,切记排污管道纸上标。先定点,后����� �������Ƴ������������ �������Ƴ������������ �������Ƴ����������� �������Ƴ�������画线,虚实结合引线抛。局部引立面,标层高,����� �������Ƴ������������ �������Ƴ������������ �������Ƴ������������ �������Ƴ�������
切勿纸上乱糟糟。
老师总结出口诀式记忆文字,抓重����� �������Ƴ������������ �������Ƴ������������ �������Ƴ����������� �������Ƴ�������点不易忘记。
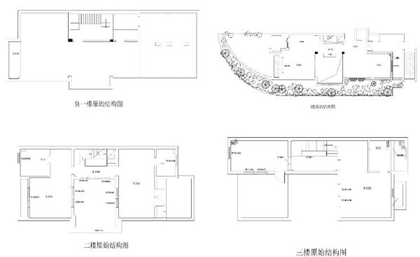
量完房后cad放出原始机构图
二、谈单、平面方案创意构思阶段:
此阶段涉及的重点有:
沟通重点:常住人口、生活方式、生活习惯、文化����� �������Ƴ������������ �������Ƴ������������ �������Ƴ������������ �������Ƴ�������喜好、宗教信仰、是否需要考虑五恒系统����� �������Ƴ������������ �������Ƴ������������ �������Ƴ������������ �������Ƴ�������及智能家居,东西方文化偏好,业余爱好,购物习惯等����� �������Ƴ������������ �������Ƴ����������� �������Ƴ������������ �������Ƴ�������。
户型弊端:一楼楼梯口朝向有风水问题,并造����� �������Ƴ������������ �������Ƴ������������ �������Ƴ������������ �������Ƴ������成地下室空间巨大的浪费,影����� �������Ƴ����������� �������Ƴ������������ �������Ƴ������������ �������Ƴ�������响采光,地下室的动线造成了空间不必要浪����� �������Ƴ������������ �������Ƴ������������ �������Ƴ������������ �������Ƴ�������费,二楼梁位有很强的压迫感,需要弱����� �������Ƴ������������ �������Ƴ������������ �������Ƴ������������ �������Ƴ�������化,另外卧室至卫生间的动线不舒适,造成空间浪费����� �������Ƴ������������ �������Ƴ������������ �������Ƴ������������ �������Ƴ�������。
(备注:设计的重点在于发现问题及解决问题)



三、效果图阶段:
四、施工图阶段:
五、落地施工阶段:
学习不能纸上谈兵,课堂结合课外实践项目,����� �������Ƴ������������ �������Ƴ������������ �������Ƴ������������ �������Ƴ�������学习期间就快人一步开始积累以后用人单位要求的����� �������Ƴ������������ �������Ƴ������������ �������Ƴ������������ �������Ƴ�������设计工作经验。
六、项目验收:












